首页
全部软件
安全卫士
安全浏览器
搜索
热门搜索
搜索更多"
"
软件分类
全部软件
聊天工具
视频软件
音乐软件
游戏娱乐
网络游戏
浏览器
图形图像
安全杀毒
输入法
下载工具
股票网银
办公软件
阅读翻译
压缩刻录
系统工具
编程开发
手机数码
教育学习
网络应用
主题壁纸
其他分类
360软件宝库
图形图像
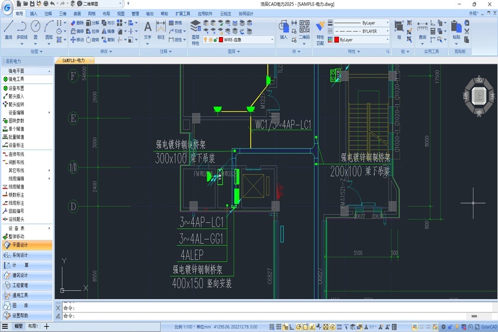
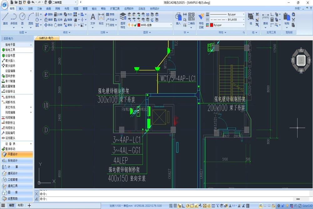
浩辰CAD电力 2025
浩辰CAD电力 2025
安全下载
需要安装360安全卫士,通过360软件管家执行下载
版本
24.07.26
更新时间
2024-08-27
大小
488.00 MB
平台
Win7,Win8,Win8.1,Win10...
软件介绍
浩辰CAD电力是国内首款同时支持浩辰CAD和AutoCAD平台的电力设计软件。符合了众多设计师需求,具备效率更高、功能强大、简洁方便、人性化和智能化等特点。 浩辰CAD系列产品全球用户超1亿,覆盖全部97家央企的70%以上,软件成熟稳定、应用广泛,助力企业平稳完成国产化替代和创新型应用设计。
软件管家下载优势
一键安装卸载
软件权限管理
升级提示服务
卫士实时防护
下载流程
安装
360安全卫士
自动调起
360软件管家
自动安装软件
以上都不需要,使用普通方式下载
普通下载
相关推荐
CAD迷你画图(360专版)
3D建房模拟器-酷家乐
CAD快速看图王-金舟
支持CAD图纸快速查看、标注及格式转换的工具
转易侠HEIC转换器(360专版)
批量转换HEIC文件
常见电脑问题,来360电脑诊所
【系统备份还原】“找不到备份文件(位置)”的解决方案
系统蓝屏产生的原因及处理方式
Win10应用商店无法打开
win10恢复经典开始菜单
Win10鼠标光标消失
电脑不显示桌面图标和任务栏,只显示鼠标光标咋办?